Setiap orang pasti mengidam-idamkan mempunyai sebuah rumah modern. Namun dengan keterbatasan dana yang dimiliki mengingat biaya yang dibutuhkan untuk membangun sebuah rumah semakin tinggi, belum lagi dengan semakin terbatasnya lahan yang bisa kita gunakan untuk membangun sebuah rumah, kita harus mencari solusi untuk tetap bisa mewujudkan rumah idaman tersebut. bagi anda yang tidak mempunyai budget yang terlalu banyak namun mempunyai keinginan untuk mempunyai hunian idaman, rumah minimalis dua lantai adalah salah satu solusi ternbaik bagi anda. rumah dua lantai dapat mengatasi keterbatasan lahan yang kita miliki. Desain rumah minimalis modern 2 lantai dapat menyesuaikan dengan luas lahan yang kita miliki nantinya.
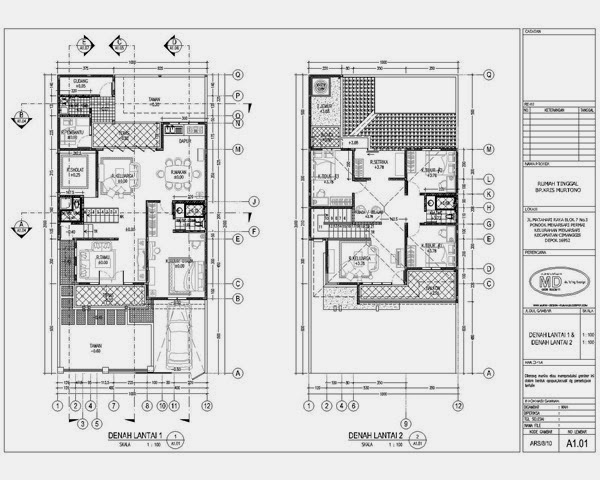
Desain rumah minimalis dua lantai secara keseluruhan akan sangat ditentukan dari rancangan denah rumah minimalis anda. Sebuah denah rumah dari teknis arsitekturnya akan menentukan bagaimana desain interior dan eksterior rumah tersebut. belum lagi dengan hal lain seperti jalur sirkulasi udara di dalam rumah serta pencahayaan yang masuk ke dalam rumah, semuanya dapat terlihat dari denah rumah anda. oleh karena itu, desain rumah minimalis modern 2 lantai anda nantinya akan sangat tergantung dengan denah rumah yang anda miliki.
Setelah memiliki sebuah denah rumah yang bagus selanjutnya kita ddapat memulai untuk membuat desain rumah minimalis yang kita miliki. Sebagai tambahan referensi, contoh mengenai desain rumah minimalis modern 2 lantai bisa dengan mudah anda dapatkan di banyak di situs di internet. Luas lahan yang dibutuhkan untuk membangun rumah minimalis ini biasanya minimal berukuran 10 x 12 meter persegi. Dengan luas lahan itu anda dapat membangun rumah yang simpel dengan gaya modern.
Untuk lantai satu pada desain rumah minimalis modern 2 lantai anda dapat diisi dengan ruangan sebagai berikut. Sebuah kamar tidur utama dengan ukuran cukup besar yaitu 5 x 4 meter persegi, didalamnya sudah terdapat sebuah kamar mandi serta toilet kecil. Selanjutnya adalah penempatan ruang tamu, dapur, ruang cuci, toilet serta garasi mobil. Anda dapat membuat sebuah taman kecil di dalam rumah anda. hal ini dilakukan untuk menyegarkan suasana dalam rumah. Sedangkan untuk lantai duanya dapat diisi dengan menempatkandua buah kamar tidur berukuran 3 x 4 meter persegi, satu kamar mandi, sebuah ruang kerja atau ruang keluarga dan bisa juga dilengkapi dengan tambahan sebuah kamar pembantu.

0 komentar:
Posting Komentar
Catatan: Hanya anggota dari blog ini yang dapat mengirim komentar.